
Написать нам
Заказать звонок
Остались вопросы?
Номер телефона
Каталог
Продукция
Опоры освещения гранёные
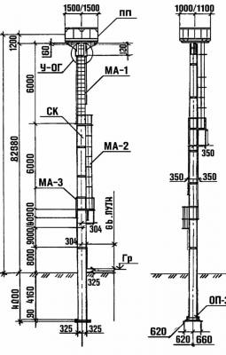
Мачта марки МО-23 по чертежам типовой серии 3.501.1-155 «Мачты осветительные с железобетонными центрифугированными стойками заводского изготовления» (выпуск 0 «Материалы для проектирования» и выпуск 2 «Площадки, оголовки, лестницы металлические. Технические условия и рабочие чертежи»).
Мачты предназначены для наружного освещения территории железнодорожных станций и узлов, локомотивного хозяйства и других открытых территорий железнодорожного транспорта.
Мачты МО-23 могут устанавливаться на прямых участках железнодорожного пути в междупутьях шириной не менее 5,55 м.
Коническая железобетонная стойка СК-26.1 мачты МО-23 заделывается в грунт на глубину 4,2 м без лежней или с 2-мя или 4-мя железобетонными лежнями Л-II по серии 3.501.1-138 выпуск 1/87 (мачты МО-23-ЛВ и МО-23-ЛВН).
Мачта осветительная МО-23 (чертеж 3.501.1-155.0-01) комплектуется:
Общий вес (масса) металлоизделий - 1180 кг
Прожекторная площадка ПП крепится на конической железобетонной стойке СК 26.1 по ГОСТ 22687.1-85 при помощи узла соединения У-ОГ, состоящего из 2-х ветвей оголовка ВО (чертеж 3.501.1-155.2-23), 4-х подкосов оголовка ПО (чертеж 3.501.1-155.2-25), фиксатора оголовка ФО (стальной пруток ф30 мм длиной 550 мм) и стержня заземления СЗ (чертеж 3.501.1-155.2-27)
Соединение прожекторной площадки ПП с верхней частью ветвей оголовков ВО - болтовое на 14 болтах М20х130
Лестничные марши МЛ крепятся на конической железобетонной стойке СК 26.1 по ГОСТ 22687.1-85 при помощи 10-и хомутов, изготовленных по чертежу 3.501.1-155.2-30 из полосовой стали сечением 6х100 мм, стягиваемых болтами М20х130.